Glacier Twin Home
ZERO LOT LINE HOME
Model B Right - Upper
Model B Right - Lower
Model B Left - Upper
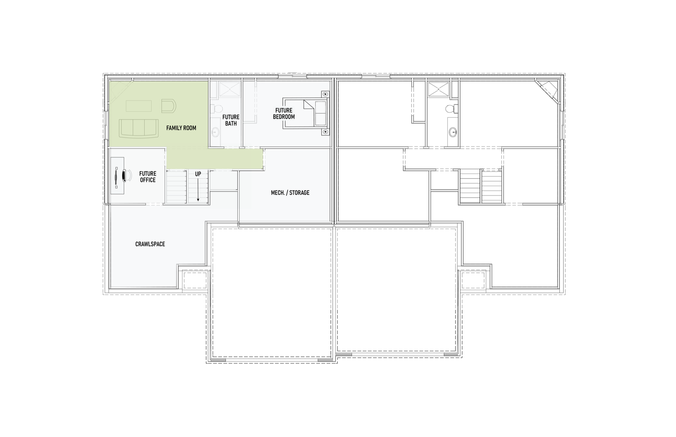
Model B Left - Lower
Model A Left - Upper
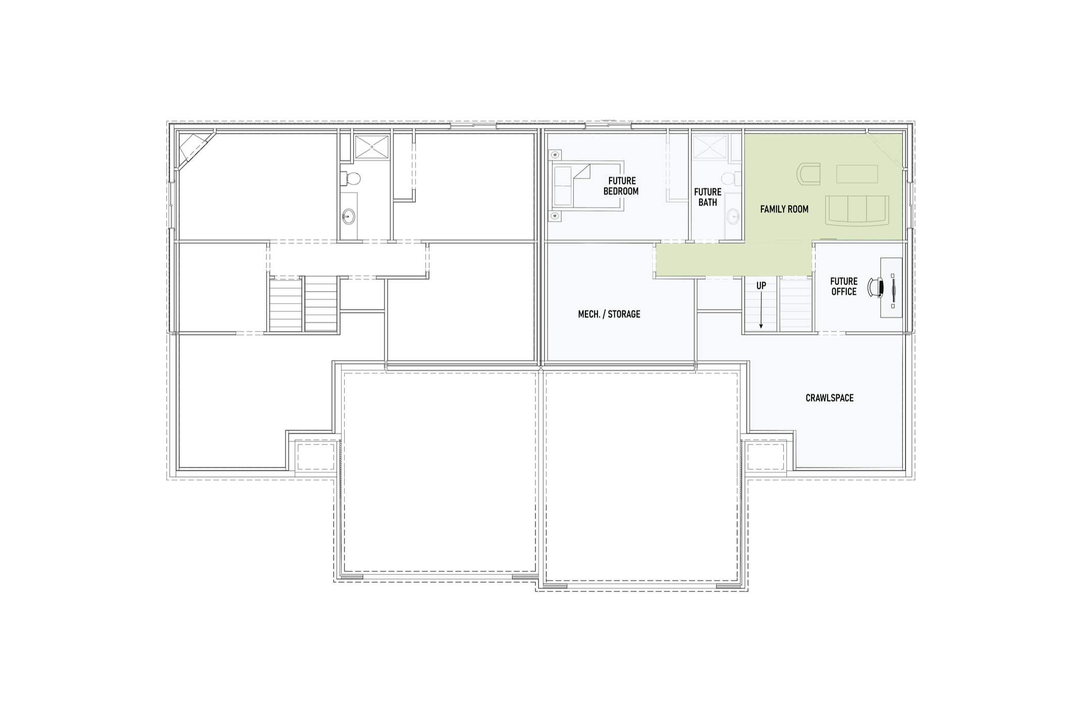
Model A Left - Lower
Model A Right - Upper
Model A Right - Lower
DESCRIPTION
Welcome home to the Glacier Twin Home plan, part of the new Zero Lot Line series from Denyon Homes. New home ownership is affordable with this 2-bed, 2-bath, 1,251 sq. ft. twin home. This tri-level model includes all kitchen appliances, a kitchen island, owner’s suite with private bath and walk-in closet, secondary bedroom and main bathroom, and a dining room over looking the great room. An expandable lower level has framing for a future family room, third bedroom, office, and is plumbed for a future third bathroom. The home is complete with a private side yard, lawn and landscaping, gutters, and blacktop driveway. Enjoy homeownership with less maintenance and no association fees.
Bedrooms: 2
Bathrooms: 2
Garage: 2-Car
Sq. Ft.: 1,251
DETAILS
Owner’s Bath & Walk-In Closet
Dining room overlooking great room
Microwave & Dishwasher
Expandable Lower Level
Central Air
Kitchen Island
ADDITIONAL DETAILS
Lawn & Landscaping
Private Back Yard
Gutters
Blacktop Driveway
Full Lot Ownership
No Association Fees
Includes a Denyon Homes limited one-year Builder’s Warranty. Prices, promotions, and specifications are subject to change at any time without notice based on the discretion of Denyon Homes